Baños: 1
Superficie: 350 m²
Superficie útil: 342 m²
Calefacción: NO
Año de construcción: 1963
Calificación energética: No disponible
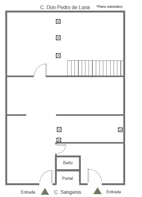
¡SIN COMISION AL COMPRADOR! Se vende amplio local comercial situado entre las calles Antonio Sangenis y Don Pedro de Luna, en el barrio Delicias de Zaragoza.
El inmueble está formado por dos locales unidos físicamente, cada uno con 171 metros útiles, lo que suma una superficie total de 342 metros útiles. Aunque uno de los locales tiene fachada hacia Don Pedro de Luna, la salida se encuentra únicamente habilitada por la calle Antonio Sangenis.
El edificio es del año 1963 y el local ofrece un espacio muy amplio, con zonas diáfanas, techos altos y una estructura metálica instalada que permite disponer de una entreplanta en gran parte de la superficie. Cuenta con varias estancias, diferentes alturas, ventanales de pavés en una de las zonas que aportan luz natural y una profundidad interior difícil de encontrar en locales de la zona.
El estado del inmueble es para reformar, lo que ofrece una magnífica oportunidad para adaptarlo completamente a las necesidades del nuevo propietario. Es adecuado para actividades que requieran gran superficie o volumen interior, como almacén, distribuidora, taller, centro deportivo, gimnasio o box de entrenamiento, estudio de producción, centro de ocio, salas de ensayo, coworking industrial o incluso inversión para la creación de trasteros o mini-almacenes, un sector en creciente demanda.
Entre sus principales características destacan los 342 metros útiles, la amplitud de espacios y la versatilidad para redistribuir el interior.
El local representa una excelente oportunidad para inversores y empresas que necesiten un gran espacio en una de las zonas con mayor densidad de población de Zaragoza. Si buscas metros, potencial y flexibilidad, este local ofrece una base sólida para desarrollar cualquier proyecto. ¡MÁS INFORMACIÓN EN YUS CONSULTORES!
Este sitio web utiliza cookies para que usted tenga la mejor experiencia de usuario. Si continúa navegando está dando su consentimiento para la aceptación de las mencionadas cookies y la aceptación de nuestra política de cookies, pinche el enlace para mayor información.
ACEPTAR